AT Österreich

Schöne 2,5-Zimmer Wohnung, Nähe Westbahnhof

515.999 €
Basisdaten
Land
Österreich
Stadt
Wien,Mariahilf
Baujahr
1897
Renditeimmobilien
Wohnimmobilien
Heizung
Etagenheizung
Energieträger
Gas
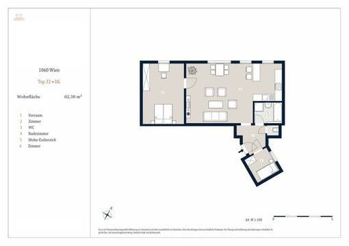
Wohnfläche (m²)
82,38
Zimmer
2,5
Badezimmer
1
Objektnummer
OBGC202508131153444781c8ed0fff2
interne Referenz
6266
Beschreibung

Im Falle der Notwendigkeit einer Fremdfinanzierung Ihrer Wunschimmobilie ermittelt unser Wohnbau-Finanzierungsexperte gerne die optimale Finanzierungslösung und findet das passende Zins- und Konditionsangebot für Sie. Er vergleicht die aktuellen Angebote aller relevanten Banken und Bausparkassen. Der Angebotsvergleich kann aus einem Portfolio von über 120 Banken erfolgen. Das Erstgespräch ist für Sie kostenfrei und unverbindlich, gerne auch bei Ihnen vor Ort. So sparen Sie Ihre wertvolle Zeit und erhalten eine professionelle und unabhängige Finanzierungslösung vom Spezialisten. Sprechen Sie uns wegen eines Termins gerne an!



 



Zum Verkauf gelangt eine schöne 2,5-Zimmer Wohnung im 6. Wiener Gemeindebezirk.



Die Wohnung befindet sich im DG eines schönen Stilaltbaus aus dem Jahr 1897 und gliedert sich in einen Vorraum, eine Wohnküche, ein Zimmer und ein Kabinett, ein Badezimmer und ein separates WC. 



Sie betreten die Wohnung und befinden sich im Vorraum, gerade durch gelangen Sie in die geräumige Wohnküche, die Küche ist komplett ausgestattet. Gleich nebenan befindet sich das größere Schlafzimmer. Das Kabinett befindet sich rechts neben dem Wohnungseingang. Das Bad ist mit einer Badewanne, einer Dusche und einem Handwaschbecken ausgestattet. Das separate WC ist ebenfalls vom Vorraum erreichbar. Die Wohnräume sind mit schönem Parkett ausgestattet und die Nassräume sind verfliest.



Das Gebäude erstreckt sich über vier Regelgeschoße sowie ein ausgebautes Dachgeschoß und bietet eine vielfältige Auswahl an Wohnungen. Einige Einheiten befinden sich in gepflegtem Gebrauchtzustand, während andere hochwertig saniert wurden.



Die Lage überzeugt durch ihre ausgezeichnete Infrastruktur. In direkter Umgebung befinden sich zahlreiche Einkaufsmöglichkeiten, Cafés, Restaurants und kulturelle Einrichtungen – allen voran die Mariahilfer Straße als bedeutendste Einkaufsmeile Wiens. Die öffentliche Verkehrsanbindung ist hervorragend, mit U-Bahn-Stationen der Linie U3 in Gehweite sowie mehreren Straßenbahn- und Buslinien in der Nähe. Auch der Westbahnhof ist schnell erreichbar und sorgt für optimale nationale und internationale Anbindung.



Zudem bietet das Umfeld ein umfassendes Angebot an Nahversorgung, medizinischer Betreuung sowie Bildungs- und Betreuungseinrichtungen für Kinder. Die Nähe zu beliebten Erholungs- und Freizeitangeboten wie dem MuseumsQuartier oder dem Burggarten rundet die hohe Lebensqualität dieser Adresse ab.



Die Vertragserrichtung und Treuhandabwicklung ist gebunden an die Kanzlei Mag. Schreiber A-1010 Wien, Schottenring 16. Die Kosten betragen 1,5 % des Kaufpreises zzgl. 20 % USt. sowie Barauslagen und Beglaubigung. Bei Fremdfinanzierung erhöht sich das Honorar auf 1,8 % vom Kaufpreis zzgl. 20 % USt., Barauslagen und Beglaubigung.



Für Besichtigungsmöglichkeiten und nähere Informationen stehen wir Ihnen gerne zur Verfügung.



Frau Marie-Louise Eisenburger

national - Tel: 0676 605 9800

international - Tel.: +43 676 605 9800

e-mail: eisenburger@lifestyle-properties.at


Wir weisen darauf hin, dass zwischen dem Vermittler und dem zu vermittelnden Dritten ein familiäres oder wirtschaftliches Naheverhältnis besteht.


Der Vermittler ist als Doppelmakler tätig.









Anfrage

Was möchten Sie als nächstes tun?

Registrieren Sie sich, um von diesen Vorteilen zu profitieren:

  • Merkliste für interessante Objekte
  • individuelle Suchaufträge
  • Zugang zu allen Angeboten
Jetzt registrieren

Herando Newsletter

Verkäufer
Lifestyle Properties

Stock-im-Eisen-Platz 3/26

1010 Wien

Österreich

alle Angebote anzeigen

 

Impressum