- Land
- Österreich
- Stadt
- Wien,Margareten
- Baujahr
- 1910
- Renditeimmobilien
- Wohnimmobilien
- Wohnfläche (m²)
- 278,99
- Objektnummer
- OBGC20251113111133731303f58167c
- interne Referenz
- 6266
Im Falle der Notwendigkeit einer Fremdfinanzierung Ihrer Wunschimmobilie ermittelt unser Wohnbau-Finanzierungsexperte gerne die optimale Finanzierungslösung und findet das passende Zins- und Konditionsangebot für Sie. Er vergleicht die aktuellen Angebote aller relevanten Banken und Bausparkassen. Der Angebotsvergleich kann aus einem Portfolio von über 120 Banken erfolgen. Das Erstgespräch ist für Sie kostenfrei und unverbindlich, gerne auch bei Ihnen vor Ort. So sparen Sie Ihre wertvolle Zeit und erhalten eine professionelle und unabhängige Finanzierungslösung vom Spezialisten. Sprechen Sie uns wegen eines Termins gerne an!
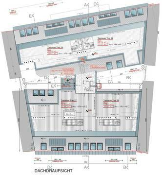
Zum Verkauf gelangt ein baubewilligter Rohdachboden im 5. Wiener Gemeindebezirk.
Die beigelegte Einreichplanung sieht einen Dachgeschossausbau mit 4 Wohneinheiten vor, wodurch eine Wohnfläche von ca. 279 m² erzielt werden könnte. Zusätzlich ist zu jeder Wohneinheit eine Dachterrasse geplant.
Die Flächen teilen sich wie folgt auf:
- Top 26: 3-Zimmer Wohnung mit ca. 74,22 m² und ca. 38,54 m² Terrasse.
- Top 27: 2-Zimmer Wohnung mit ca. 70,53 m² und ca. 52,44 m² Terrasse.
- Top 28: 3-Zimmer Wohnung mit ca. 72,63 m² und ca. 37,87 m² Terrasse.
- Top 29: 2-Zimmer Wohnung mit ca. 61,61 m² und ca. 29,02 m² Terrasse.
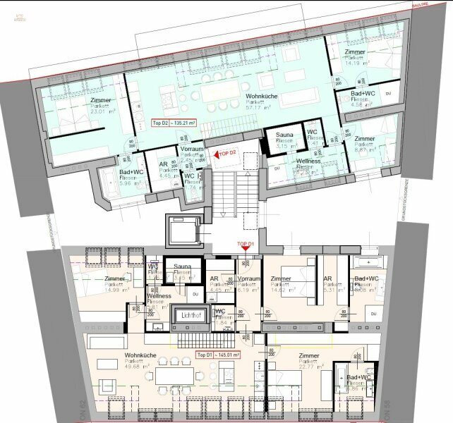
Alternativ gibt es eine weitere Baustudie, die den Bau von 2 Einheiten mit jeweils einer Terrasse vorsieht. Hierfür müsste allerding neu eingereicht werden.
Hier teilen sich die Flächen wie folgt auf:
- Top D1: 4-Zimmer Wohnung mit ca. 145,01 m² und ca. 95,45 m² Terrasse.
- Top D2: 4-Zimmer Wohnung mit ca. 135,21 m² und ca. 71,95 m² Terrasse.
Die Lage und Infrastruktur des 1910 erbauten Gründerzeithauses ist als sehr gut zu bewerten. In unmittelbarer Nähe befinden sich diverse Geschäfte des täglichen Lebens (Supermarkt, Kiosk etc.). Ebenso sind mehrere Restaurants fußläufig erreichbar. Die Anbindung an den öffentlichen Verkehr ist durch die U4 sowie die Autobuslinien 12A, 13A und 59A gewährleistet. Für genauere Informationen zur Infrastruktur, fordern Sie bitte unser Exposé an.
Gerne lassen wir Ihnen bei ernsthaftem Interesse - vor Kaufanbotlegung - weitere vertraulichen Dokumente zu dieser Liegenschaft zukommen, welche nicht veröffentlicht werden dürfen.
Überzeugen Sie sich selbst von diesem überaus attraktiven Entwicklungsobjekt. Für Besichtigungen und nähere Informationen stehen wir Ihnen gerne zur Verfügung!
Mag. Viola Wasmuth
national - Tel: 0670 4039361
international - Tel:
e-mail: wasmuth@lifestyle-properties.at
Wir weisen darauf hin, dass zwischen dem Vermittler und dem zu vermittelnden Dritten ein familiäres oder wirtschaftliches Naheverhältnis besteht.
Der Vermittler ist als Doppelmakler tätig.
Was möchten Sie als nächstes tun?
Registrieren Sie sich, um von diesen Vorteilen zu profitieren:
- Merkliste für interessante Objekte
- individuelle Suchaufträge
- Zugang zu allen Angeboten
Herando Newsletter
Stock-im-Eisen-Platz 3/26
1010 Wien
IM Lifestyle Properties e.U.
Stock-im-Eisen-Platz 3/26
1010 Wien
Bankverbindung: Raiffeisenlandesbank NOE-Wien | IBAN: AT82 3200 0001 0684 5077 | BIC: RLNWATWW
Firmensitz Wien
UID ATU66291844
Handelsgericht Wien
FN 452870k









