- Land
- Österreich / Tirol
- Stadt
- Kitzbühel
- Baujahr
- 2025
- Immobilienart
- Wohnung
- Objektzustand
- Erstbezug
- Heizung
- Fußbodenheizung
- Energieträger
- Erdwärme
- Wohnfläche (m²)
- 80
- Etagen
- 4
- Zimmer
- 3
- Badezimmer
- 1
- Ausstattung
- luxuriös
- Objektnummer
- 5542_9453_MG-0002448_1
- interne Referenz
- 5542
DATEN
- Wohn- / Nutzfläche 52 m² bis 133 m²
- Schlafzimmer 1 bis 3
- Badezimmer 1 bis 2
- Kaufpreis ab € 990.000,- bis 3.352.000,-
- Energiedaten in Arbeit.
FAKTEN
Fertigstellung Herbst 2025, Wohnfläche von ca. 52 m² bis 133 m², 1 Schlafzimmer bis 2/3 Schlafzimmer, hochwertige Ausstattung, Raffstore, Erdwärme, Eichenböden, 3-fach-Verglasung, Tiefgarage, zentrale Lage
EINHEITEN
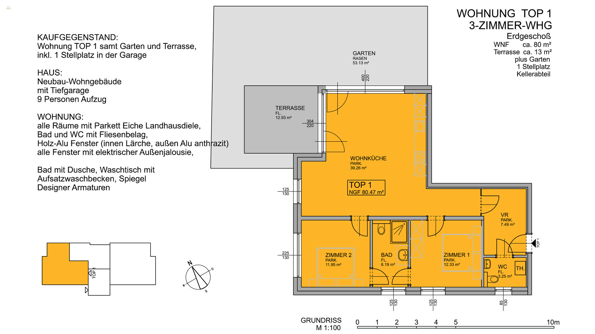
- Top 1 (EG) ca. 80 m² WNF, 2 Schlafzimmer, 1 Badezimmer € 1.490.000,-
- Top 2 (EG) ca. 52 m² WNF, 1 Schlafzimmer, 1 Badezimmer € 990.000,-
- Top 3 (EG) ca. 96 m² WNF, 2 Schlafzimmer, 2 Badezimmer € 1.990.000,-
- Top 4 (1. OG) ca. 134 m² WNF, 3 Schlafzimmer, 2 Badezimmer € 3.352.000,-
- Top 5 (1. OG) ca. 96 m² WNF, 2 Schlafzimmer, 2 Badezimmer € 2.536.000,-
Stellplatz
- Limousine € 40.000,- | Van € 50.000,-
CHARAKTERISTIK
Dieses exklusive Wohnprojekt im Herzen von Kitzbühel vereint modernes Wohnen mit traditionellem Tiroler Stil – eine perfekte Symbiose aus zeitgemäßer Architektur und alpinem Charme.
In zentraler Lage, mitten im pulsierenden Leben der berühmten Gamsstadt, sind alle wichtigen Einrichtungen wie Restaurants, Geschäfte und Freizeiteinrichtungen bequem fußläufig erreichbar.
Genauso wie die weltberühmte Hahnenkammbahn und die Streif. Hier finden Sie Ihr Zuhause im Herzen von Kitzbühel – perfekt für all jene, die urbanes Leben in einer der begehrtesten Alpendestinationen mit alpinem Flair genießen möchten.
Das Projekt umfasst insgesamt fünf hochwertige Wohneinheiten, die in Größen von 52 m² bis 133 m² variieren.
Vom charmanten Erdgeschoss bis hin zum Obergeschoss ist für jeden Geschmack was dabei. Jede Wohnung besticht durch intelligente Grundrisse, die eine optimale Raumnutzung und maximalen Wohnkomfort gewährleisten.
Große Fensterfronten sorgen für lichtdurchflutete Räume und bieten Ausblicke auf die umliegende Bergwelt. Modernste Haustechnik, darunter eine umweltfreundliche Erdwärmeheizung, sorgt für nachhaltiges und energieeffizientes Wohnen.
Eine hauseigene Tiefgarage bietet bequemen Parkraum, während der Tiroler Baustil mit zeitgemäßen Elementen das Gesamtbild dieses Wohnprojekts abrundet.
3,0 %
Was möchten Sie als nächstes tun?
Registrieren Sie sich, um von diesen Vorteilen zu profitieren:
- Merkliste für interessante Objekte
- individuelle Suchaufträge
- Zugang zu allen Angeboten
Herando Newsletter
Im Gries 27
6370 Kitzbühel
Inhaber: Franz Gobec RR Bgm.a.D.
staatl. gepr. und konzess. Immobilientreuhänder, Immobilienmakler, Immobilienverwalter und Bauträger,
Mitglied des Ehrenschiedsgerichtes Tirol
Im Gries 27
A-6370 Kitzbühel
Mobil: +43 676 7047120
Fax: +43 5356 67677
E-Mail: office@kitzimmo.at
IBAN AT152050500000031195
BIC SPKIAT2K
Bezirkshauptmannschaft Kitzbühel
UID: ATU60133411










