- Země
- Rakousko
- Město
- Wien,Mariahilf
- Rok výroby
- 1897
- Investice do nemovitostí
- Rezidenční nemovitosti
- Topení
- etážové topení
- Palivo
- plyn
- Obytná plocha (m²)
- 57,23
- Pokoje
- 2
- Koupelny
- 1
- Číslo objektu
- OBGC20250813120016657b4f90b1d34
- Interní reference
- 6266
Im Falle der Notwendigkeit einer Fremdfinanzierung Ihrer Wunschimmobilie ermittelt unser Wohnbau-Finanzierungsexperte gerne die optimale Finanzierungslösung und findet das passende Zins- und Konditionsangebot für Sie. Er vergleicht die aktuellen Angebote aller relevanten Banken und Bausparkassen. Der Angebotsvergleich kann aus einem Portfolio von über 120 Banken erfolgen. Das Erstgespräch ist für Sie kostenfrei und unverbindlich, gerne auch bei Ihnen vor Ort. So sparen Sie Ihre wertvolle Zeit und erhalten eine professionelle und unabhängige Finanzierungslösung vom Spezialisten. Sprechen Sie uns wegen eines Termins gerne an!
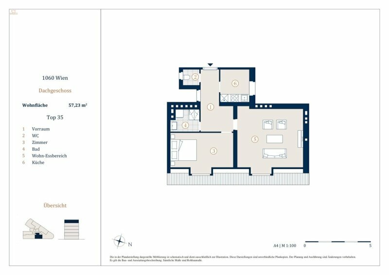
Zum Verkauf gelangt eine schöne 3-Zimmer Wohnung im 6. Wiener Gemeindebezirk Neubau.
Die Wohnung befindet sich im DG eines schönen Stilaltbaus aus dem Jahr 1897 und gliedert sich in einen Vorraum, einen Wohnraum, ein Zimmer, eine Küche, ein Badezimmer und ein separates WC. Die Wohnung ist möbliert.
Sie betreten die Wohnung und befinden sich im Vorraum, sowohl das Wohnzimmer als auch das Schlafzimmer sind zentral vom Vorraum begehbar. Das Bad ist mit einer Dusche, einem Handwaschbecken und einem Handtuchtrockner ausgestattet. Die Küche befindet sich links beim Wohnungseingang. Das separate WC ist ebenfalls vom Vorraum erreichbar. Die Wohnräume sind mit schönem Parkett ausgestattet und die Nassräume sind verfliest.
Das Gebäude erstreckt sich über vier Regelgeschoße sowie ein ausgebautes Dachgeschoß und bietet eine vielfältige Auswahl an Wohnungen. Einige Einheiten befinden sich in gepflegtem Gebrauchtzustand, während andere hochwertig saniert wurden.
Die Lage überzeugt durch ihre ausgezeichnete Infrastruktur. In direkter Umgebung befinden sich zahlreiche Einkaufsmöglichkeiten, Cafés, Restaurants und kulturelle Einrichtungen – allen voran die Mariahilfer Straße als bedeutendste Einkaufsmeile Wiens. Die öffentliche Verkehrsanbindung ist hervorragend, mit U-Bahn-Stationen der Linie U3 in Gehweite sowie mehreren Straßenbahn- und Buslinien in der Nähe. Auch der Westbahnhof ist schnell erreichbar und sorgt für optimale nationale und internationale Anbindung.
Zudem bietet das Umfeld ein umfassendes Angebot an Nahversorgung, medizinischer Betreuung sowie Bildungs- und Betreuungseinrichtungen für Kinder. Die Nähe zu beliebten Erholungs- und Freizeitangeboten wie dem MuseumsQuartier oder dem Burggarten rundet die hohe Lebensqualität dieser Adresse ab.
Die Vertragserrichtung und Treuhandabwicklung ist gebunden an die Kanzlei Mag. Schreiber A-1010 Wien, Schottenring 16. Die Kosten betragen 1,5 % des Kaufpreises zzgl. 20 % USt. sowie Barauslagen und Beglaubigung. Bei Fremdfinanzierung erhöht sich das Honorar auf 1,8 % vom Kaufpreis zzgl. 20 % USt., Barauslagen und Beglaubigung.
Für Besichtigungsmöglichkeiten und nähere Informationen stehen wir Ihnen gerne zur Verfügung.
Frau Marie-Louise Eisenburger
national - Tel: 0676 605 9800
international - Tel.: +43 676 605 9800
e-mail: eisenburger@lifestyle-properties.at
Wir weisen darauf hin, dass zwischen dem Vermittler und dem zu vermittelnden Dritten ein familiäres oder wirtschaftliches Naheverhältnis besteht.
Der Vermittler ist als Doppelmakler tätig.
Co chcete dělat dál?
Zaregistrujte se a využijte těchto výhod:
- sledujte seznam zajímavých objektů
- individuální požadavky na vyhledávání
- přístup ke všem nabídkám
Herando Newsletter
Stock-im-Eisen-Platz 3/26
1010 Wien
IM Lifestyle Properties e.U.
Stock-im-Eisen-Platz 3/26
1010 Wien
Bankverbindung: Raiffeisenlandesbank NOE-Wien | IBAN: AT82 3200 0001 0684 5077 | BIC: RLNWATWW
Firmensitz Wien
UID ATU66291844
Handelsgericht Wien
FN 452870k









